Tổng quan
Hotline ☎ 0901.335.996 ✓ Dự án Căn Hộ Chung Cư D-Homme Quận 6 ✓ Chủ đầu tư DHA ✓ Căn Hộ Mặt Tiền Đường Hồng Bàng Quận 6 ✓ Vị Trí Đắc Địa.
D-Homme tọa lạc mặt tiền đường Hồng Bàng Quận 6 do Công ty DHA làm chủ đầu tư. Đây là dự án có chiều cao 30 tầng trong đó có những 3 tầng hầm, 5 tầng thấp nhất dành cho không gian của trung tâm thương mại. Với dự án D Homme Quận 6, chủ đầu tư DHA muốn tạo nên sự khác biệt, độc đáo, không lẫn vào với các dự án trước đây tại khu vực có đông người Hoa sinh sống này.
Với quỹ đất vô cùng hạn hẹp tại Quận 6 trong khi chung cư D Homme lại tọa lạc trên trục đường lớn, là tuyến giao thông huyết mạch giúp di chuyển nhanh sang các quận trung tâm như: quận 11, quận 10 và quận 1 nên không khó dự đoán sức hút mãnh liệt của dự án với người dân khu Tây thành phố, đặc biệt là người Hoa.
Một yếu tố khách làm cho căn hộ D Homme trở thành căn hộ mơ ước của người dân quận 6 nói chung và người hoa nói riêng là từ thiết kế tổng quan, thiết kế chi tiết cho đến tiện ích nội khu không chỉ thể hiện một đẳng cấp vượt trội mà còn rất phù hợp với “gu” của khách hàng mà chủ đầu tư DHA hướng tới.
Về chính sách vay mua D Homme Quận 6, chủ đầu tư cũng có chính sách ưu đãi để hỗ trợ khách vay như sau:
– Khách hàng sử dụng chương trình vay 50% sẽ được chủ đầu tư hỗ trợ lãi xuất 0% đến khi nhận nhà và ngân hàng ân hạn nợ gốc 12 tháng.
– Khách hàng sử dụng chương trình vay 70% chỉ được chủ đầu tư hưởng hỗ trợ 50% như trên, 20% còn lại không được hỗ trợ.
|
Tên dự án |
D-Homme |
|
Chủ đầu tư |
DHA (thuộc TTC) |
|
Phân phối dự án |
|
|
Địa chỉ dự án |
765 Hồng Bàng, phường 6 , quận 6, TP. Hồ Chính Minh |
|
Tổng diện tích |
5.200 m² |
|
Mật độ xây dựng |
44% |
|
Quy mô dự án |
25 tầng căn hộ, 3 tầng hầm, 5 tầng thương mại |
|
Số căn hộ |
497 căn (97 căn 1PN – 57 căn 1+1 – 250 căn 2PN – 75 căn 3PN) |
|
Diện tích |
49 m² – 59 m² – 69 m², 89 m² – Duplex: 120 m² – Dual Key: 115 m² |
|
Thời hạn sở hữu |
Lâu dài |
|
Tổng thầu xây dựng |
|
|
Thiết kế kiến trúc |
Subana SJ (Singapore) |
|
Thời gian bàn giao |
Quý 4/2022 |

Vị trí
D-Homme Q6 tọa lạc ngay mặt tiền đường Hồng Bàng, ngay cầu vượt Cây Gõ, tiếp giáp với đường 3 Tháng 2 và Minh Phụng. Từ vị trí này, chỉ cần di chuyển thêm vài phút đã đến trung tâm Quận 5, Quận 10.

Các Tiện ích
✓ Bóng rổ ✓ BBQ sân thượng ✓ Sân tập dưỡng sinh ✓ Hồ bơi ✓ Hồ bơi trẻ em ✓ Hồ bơi sân thượng ✓ Hồ sục nước khoáng CO2 nhân tạo ✓ Phòng Gym ✓ Aqua Gym ✓ Spa ✓ Sân tập Yoga ✓ Sân vườn ✓ Kids Zone (chủ đề sinh vật biển) ✓ Khu vui chơi trẻ em ✓ Rạp chiếu phim mái vòm



Mặt bằng
MẶT BẰNG TẦNG ĐIỂN HÌNH

———————————
MẶT BẰNG CĂN HỘ
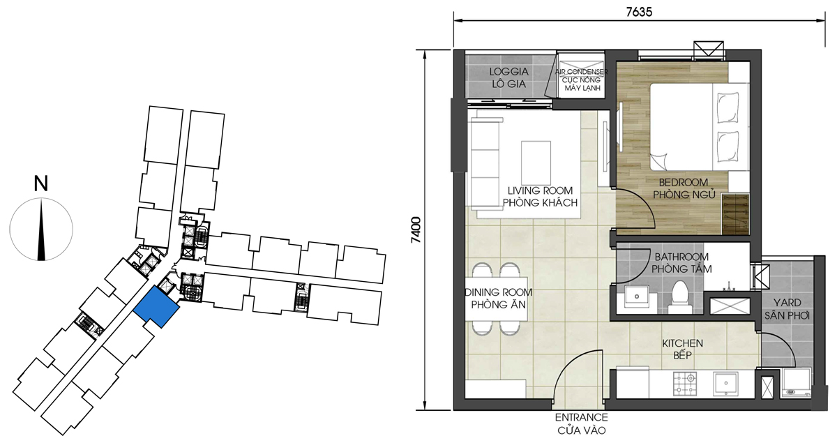
CĂN HỘ 1 PHÒNG NGỦ – THÔNG THỦY 44,95 M²

——————–
CĂN HỘ 1 PHÒNG NGỦ (*) – THÔNG THỦY 44,96 M²

——————–
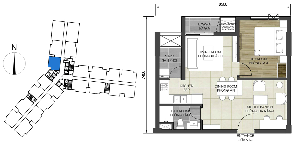
CĂN HỘ 1 PHÒNG NGỦ + 1 – THÔNG THỦY 52,46 M²

——————–
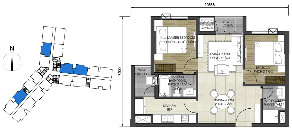
CĂN HỘ 2 PHÒNG NGỦ – THÔNG THỦY 61,12 M²

——————–
CĂN HỘ 2 PHÒNG NGỦ (*) – THÔNG THỦY 61,12 M²

——————–
CĂN HỘ 3 PHÒNG NGỦ – THÔNG THỦY 80,35 M²

——————–
CĂN HỘ DUAL KEY – THÔNG THỦY 98,6 M²

——————–
CĂN HỘ DUPLEX – THÔNG THỦY 105,44 M²

Thanh toán

Ngân hàng

Dự án sắp công bố
| DỰ ÁN ĐANG TRIỂN KHAI: Danang Gold Tower | Lam Sơn Nexus | Dự an Poulo Condor | Coastal Quảng Ngãi | Symlife | Peninsula Đà Nẵng | Destino Centro | Stella Icon | FIFA City | Square City | Hiyori Aqua Tower |


