Tổng quan HP INTERMIX
HP Intermix là khu đô thị mới có quy mô 2,4ha bao gồm 117 căn shophouse và 4 tòa tháp chung cư cao tầng tại trung tâm thành phố Bắc Giang. Đây là một phần trong tổng thể khu đô thị hiện hữu có quy mô hơn 100ha.
HP Intermix Bắc Giang được chủ đầu tư kỳ vọng trở thành phố đi bộ mang màu sắc Quốc tế mới xuất hiện tại Bắc Giang, kiến tạo nên chất sống hội nhập khác biệt là sự cộng hưởng những tiêu chuẩn cao cấp và tiện ích đặc quyền không chỉ nâng tầm giá trị sống đẳng cấp của cư dân, mà còn ươm mầm tinh hoa thế hệ công dân toàn cầu.
Dự án HP Intermix Bắc Giang khai thác tối đa tiềm năng gia tăng giá trị và kinh doanh sinh lời bền vững nhờ hưởng lợi từ dòng du khách địa phương khổng lồ và chuyên gia người nước ngoài tại Bắc Giang. Vì vậy, một khi dự án được cống bố (dự kiến sau thời gian dịch Covid 19) sẽ thu hút những khách hàng giàu có không chỉ ở Bắc Giang mà còn ở các tỉnh lân cận như Hà Nội, Hải Dương, Lạng Sơn…
>>> Tham khảo: Lam Sơn Nexus City Bắc Giang | Dream City Bắc Giang.
|
Tên thương mại |
HP Intermix |
|
Chủ đầu tư |
Công ty Cổ phần Đầu tư Hải Phát |
|
Phát triển dự án |
Hải Phát Land |
|
Phân phối dự án |
|
|
Địa chỉ dự án |
phường Dinh Kế và xã Tân Tiến, thành phố Bắc Giang |
|
Diện tích khuôn viên |
2,4 ha |
|
Mật độ xây dựng |
100% |
|
Loại hình |
|
|
Diện tích đất |
6 x 20m | 6 x 22,6m | 10 x 20 m | 12 x 17,9 m |
|
Diện tích sàn xây dựng |
300 m² | 320 m² | 400 m² |
|
Số lượng sản phẩm |
117 căn |
|
Quy chuẩn xây dựng |
4 tầng + tầng mái |
|
Tổng thầu xây dựng |
Tổng công ty Thăng Long |
|
Tình trạng pháp lý |
Đã có GCNQSDĐ từng nền |
|
Thời gian sở hữu |
Lâu dài |
|
Thời gian bàn giao |
Quý 4/2022 |
|
Giá dự kiến |
Shophoues 130-140 triệu/m² | Mặt trong 85-90/m² |

Vị trí HP INTERMIX
VỊ TRÍ HP INTERMIX BẮC GIANG
Dự án HP Intermix tọa lạc tại phường Dinh Kế và xã Tân Tiến, thành phố Bắc Giang.Dự án sở hữu tiện ích ngoại khu đắt giá khi nằm ngay cạnh: Công Viên (20ha), Phố Đi Bộ, Trung Tâm Thương Mại Big C, Trung tâm Văn Hóa Cánh Diều,…
Phố đi bộ quốc tên HP Intermix Bắc gian tọa lạc ngay vị trí độc tôn, nơi tâm điểm của tinh hoa với cơ sở hạ tầng hoàn hảo. Nơi đây tập trung hàng loạt giao điểm hành chính, văn hóa, giáo dục và kết nối không giới hạn các tỉnh lân cận qua tuyến đường huyết mạch như trục cao tốc Hà Nội – Lạng Sơn, Quốc Lộ 1A, đường Tâm Linh.
Dự án HP Intermix Bắc Giang là dự án phố đi bộ duy nhất của thành phố nằm trong khuôn viên khu đô thị được quy hoạch đồng bộ và bài bản, tôn vinh vị thế đỉnh cao của Bắc Giang.

BẮC GIANG & LỢI THẾ CỦA HP INTERMIX
Thiết kế HP INTERMIX
Shophouse HP Intermix được thiết kế với chức năng chính là cửa hàng dịch vụ ăn uống kết hợp với nhà ở cho thuê.
Với mục tiêu như vậy nên HP Intermix Bắc Giang được kiến tạo một không gian thông thoáng, giao thông thuận tiện, đặc biệt là ở tầng 1 (tầng phục vụ kinh doanh chính) và tầng 3 thành không gian phòng ngủ để giảm tối đa sự ồn ào cho gia chủ.
Các căn shophouse HP Intermix Bắc Giang ở tầng 1 có tone màu chủ đạo là màu ghi trắng với điển nhấn là những bức tranh phong cách đơn giản lịch sự của quán cafe, tiếp đó là không gian tầng 2,3,4,5 không gian phòng với tone màu trầm ấy và vệ sinh sinh khép kín ở trong phòng.
Điểm nhấn của shophouse HP Intermix là dùng chính hệ kết cấu thô và hệ thống kỹ thuật để trang trí cho toàn bộ không gian. Các hệ kệ trưng bày được mô-đun hoá để giảm giá thành khi sản xuất, đồng thời dễ dàng thay đổi trưng bày theo nhu cầu sản phẩm mới. Việc phân khu theo đối tượng khách hàng cũng được quan tâm thông qua ngôn ngữ thiết kế. Các điểm nhấn trưng bày ở sảnh, nhấn gam ghi xám, nâu trầm cho thang bộ đứng cũng là những điều thú vị của không gian vận hành.



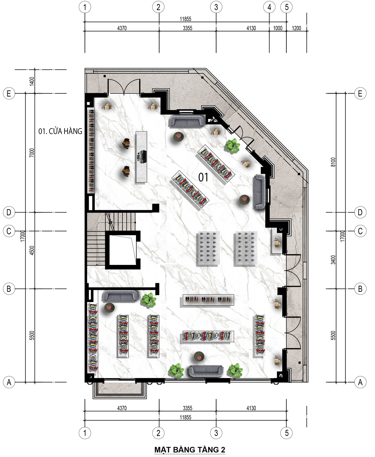
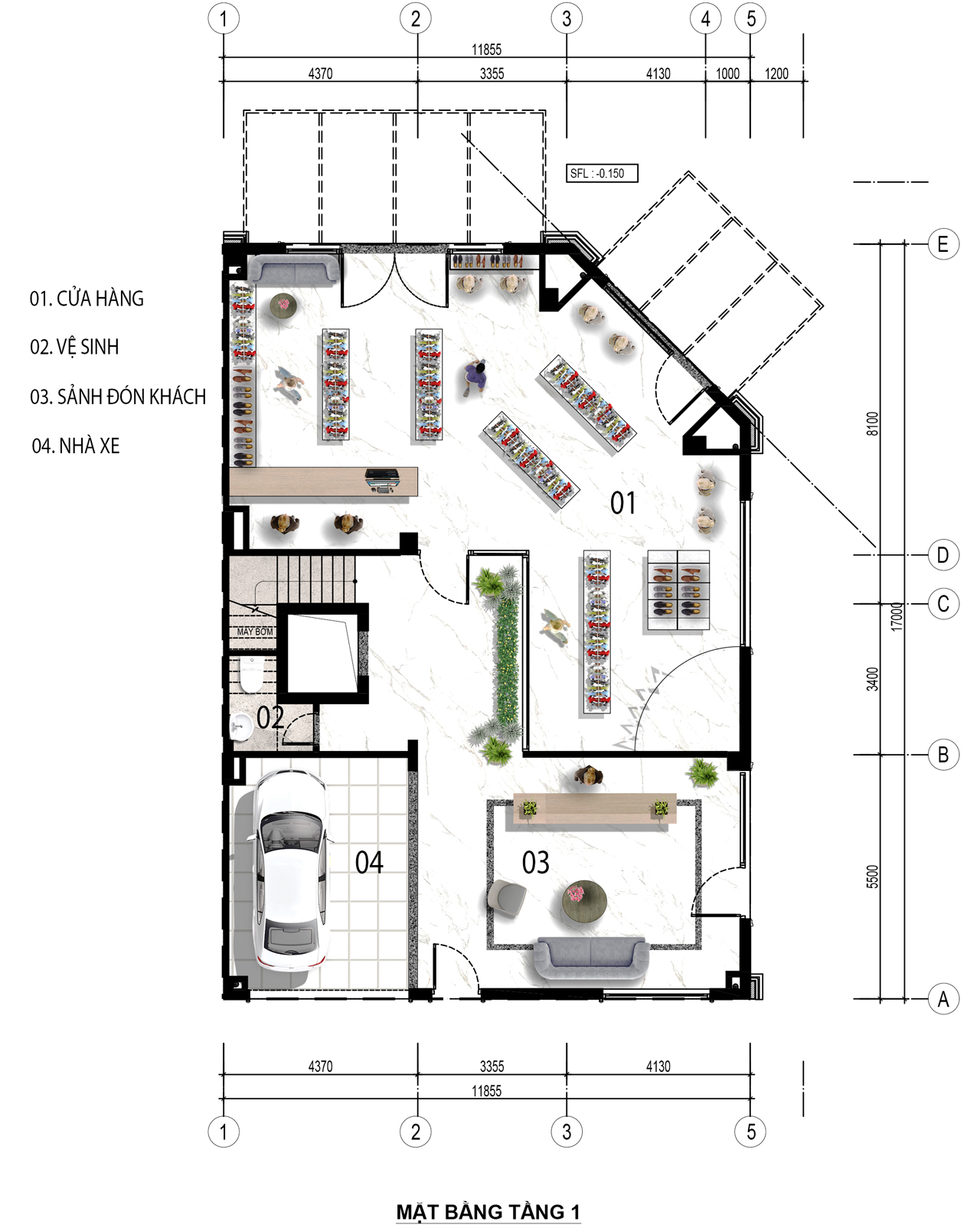
Mặt bằng HP INTERMIX
MẶT BẰNG CHI TIẾT HP INTERMIX

MẶT BẰNG CHI TIẾT SHOPHOUSE HP INTERMIX
≡ CĂN DH.1.2A

≡ CĂN G.1.11

≡ CĂN G.2.2A

Thanh toán HP INTERMIX
|
ĐỢT |
TIẾN ĐỘ THANH TOÁN DỰ KIẾN |
THỜI GIAN DỰ KIẾN |
|
Đợt 1 |
10% Tổng giá trị hợp đồng |
Ngay sau khi ký Hợp đồng mua bán |
|
Đợt 2 |
10% Tổng giá trị hợp đồng |
Trong vòng 02 tháng kể từ ngày ký Hợp đồng mua bán |
|
Đợt 3 |
10% Tổng giá trị hợp đồng |
Trong vòng 04 tháng kể từ ngày ký Hợp đồng mua bán |
|
Đợt 4 |
15% Tổng giá trị hợp đồng |
Trong vòng 06 tháng kể từ ngày ký Hợp đồng mua bán |
|
Đợt 5 |
15% Tổng giá trị hợp đồng |
Trong vòng 08 tháng kể từ ngày ký Hợp đồng mua bán |
|
Đợt 6 |
15% Tổng giá trị hợp đồng |
Trong vòng 10 tháng kể từ ngày ký Hợp đồng mua bán |
|
Đợt 7 |
20% Tổng giá trị hợp đồng |
Khi có thông báo bàn giao nhà |
|
Đợt 8 |
5% Tổng giá trị hợp đồng |
Trong vòng 07 ngày kể từ ngày theo Thông báo của Bên Bán về việc căn nhà đã được cấp Giấy chứng nhận hoặc vào thời hạn khác do hai bên thỏa thuận tùy theo điều kiện nào đến trước |
Giá bán HP INTERMIX
GIÁ BÁN SHOPHOUSE HP INTERMIX
Giá bán shophouse HP Intermix chỉ từ 130 – 140 triệu/m². Đối với những căn mặt trong, giá bán chỉ từ 85 – 90/m².
CHƯƠNG TRÌNH HỖ TRỢ LÃI SUẤT
+ Hỗ trợ lãi suất 0% tối đa 65% Tổng giá trị hợp đồng trong thời gian 12 tháng (Trong thời gian 12 tháng, Chủ đầu tư sẽ chi trả lãi vay). Sau thời gian 12 tháng, Khách hàng tự chi trả theo lãi suất Ngân hàng công bố từng thời điểm.
+ Khách hàng được Ngân hàng cho ân hạn nợ gốc 12 tháng tính từ đợt giải ngân đầu tiên.
+ Điều kiện áp dụng: Khách hàng hoàn tất thủ tục ký Hợp đồng mua bán với Chủ đầu tư và thanh toán tối thiểu 30% Tổng giá trị hợp đồng
|
ĐỢT |
TIẾN ĐỘ THANH TOÁN DỰ KIẾN |
THỜI GIAN DỰ KIẾN |
|
Đợt 1 |
30% Tổng giá trị hợp đồng |
Ngay sau khi ký Hợp đồng mua bán |
|
Đợt 2 |
25% Tổng giá trị hợp đồng |
Trong vòng 45 ngày kể từ ngày ký Hợp đồng mua bán (không chậm hơn ngày 15/4/2022) |
|
Đợt 3 |
20% Tổng giá trị hợp đồng |
Trong vòng 90 ngày kể từ ngày ký Hợp đồng mua bán (không chậm hơn ngày 28/6/2022) |
|
Đợt 4 |
20% Tổng giá trị hợp đồng |
Khi có thông báo bàn giao nhà |
|
Đợt 5 |
5% Tổng giá trị hợp đồng |
Trong vòng 07 ngày kể từ ngày theo Thông báo của Bên Bán về việc căn nhà đã được cấp Giấy chứng nhận hoặc vào thời hạn khác do hai bên thỏa thuận theo điều kiện nào đến trước |

KHI SHOPHOUSE HP INTERMIX LÀ NGÔI NHÀ ĐẦU TIÊN
Mua căn nhà đầu tiên thực sự là một trong những khoảng thời gian thú vị nhất trong cuộc đời bạn. Trên thực tế, ai cũng mơ ước được sở hữu một ngôi nhà tốt và mang đến cho những người thân yêu của mình một môi trường sống tốt nhất, và, sẽ thật tuyệt vời hơn nếu như căn nhà đó lại là một nơi kinh doanh buôn bán nhộn nhịp giúp gia đình bạn “hái ra tiền”, chẳng hạn như shophouse HP Intermix Bắc Giang.
Đó là lý do tại sao mọi người tiết kiệm trong nhiều năm để đảm bảo rằng khi cuối cùng họ đạt được mục tiêu, ngôi nhà đầu tiên của họ sẽ thật tuyệt vời và hiện thực hóa một giấc mơ lớn đối với họ. Tuy nhiên, để có được ngôi nhà đẹp đó không chỉ là tích lũy tài nguyên theo thời gian. Bạn cũng cần phải cẩn thận một chút khi chọn nơi mua nhà. Ngày nay, có rất nhiều bất động sản nhà ở được dán nhãn là tốt nhất, nhưng theo ý nghĩa thực tế, chúng có thể không tốt như vậy. Do đó, hãy dành thời gian để xem mọi thông tin liên quan đến HP Intermix Bắc Giang. Bạn sẽ không thất vọng khi sở hữu nó.
Video HP INTERMIX
Dự án sắp công bố
| DỰ ÁN ĐANG TRIỂN KHAI: Danang Gold Tower | Lam Sơn Nexus | Dự an Poulo Condor | Coastal Quảng Ngãi | Symlife | Peninsula Đà Nẵng | Destino Centro | Stella Icon | FIFA City | Square City | Hiyori Aqua Tower |


