Tổng quan K-HOME
K-Home là dòng căn hộ chung cư mini có diện tích nhỏ, có thời hạn sử dụng ngắn hơn các loại căn hộ thông thường nhằm đáp ứng nhu cầu nhà ở cho các đối tượng chưa có nguồn tài chính dồi dào hoặc có nhu cầu sử dụng nhà ở diện tích nhỏ.
Khu căn hộ mini K Home là dự án thuộc về chủ đầu tư Topland – một đơn vị có uy tính chuyên phát triển dòng căn hộ mini tại TP. HCM như S Home (đường Cống Lở) S Home 2 (đường Phan Huy Ích)…
K-Home Gò Vấp có tổng diển tích 350,4m², bao gồm 1 khối tháp cao 4 tầng với 83 căn hộ có diện tích từ 30 đến 45 m² (loại căn hộ studio, 1 phòng ngủ và 2 phòng ngủ). Căn hộ K-Home được bàn giao hoàn thiện với đầy đủ nội thất.
Mặc dù K Home là những căn hộ diện tích nhỏ nhưng rất phù hợp với những đối tượng độc thân, chưa lập gia đình hay mới lập gia đình, hoặc những học sinh sinh viên chưa có tiềm lực tài chính để mua căn hộ diện tích lớn. Đặc biệt, căn hộ chung cư K-Home rất tốt để đầu tư bán lại hay đầu tư cho thuê phục vụ đối tượng có nhu cầu nhà ở trong ngắn hạn.
Tham khảo: SPACE SHIP ONE TÂN BÌNH | S HOME 2.
|
Tên dự án |
K-Home |
|
Chủ đầu tư |
Công ty Cổ phần Bất Động Sản Topland Việt Nam |
|
Phân phối dự án |
|
|
Địa chỉ dự án |
69 đường 59, phường 14, quận Gò Vấp |
|
Diện tích khuôn viên |
350,4m² |
|
Mật độ xây dựng |
45% |
|
Quy mô dự án |
1 khối tháp cao 4 tầng cao 1 tầng hầm |
|
Số căn hộ |
83 căn |
|
Loại sản phẩm |
|
|
Diện tích |
30 – 45 m² (studio, 1PN và 2PN) |
|
Thời hạn sở hữu |
Đến năm 2069. |
|
Hiện trạng pháp lý |
Đã có giấy phép xây dựng |
|
Hình thức bàn giao |
Hoàn thiện cơ bản – full nội thất |
|
Thời gian bàn giao |
Tháng 12/2022 |
|
Giá bán đợt đầu |
chỉ từ1 tỷ đồng/căn |

Vị trí K-HOME
Dự án K-Home tọa lạc tại số 69 đường 59 thuộc phường 14, quận Gò Vấp, thành phố Hồ Chí Minh. Vị trí dự án căn hộ K-Home nằm ngay trung tâm quận Gò Vấp, cách đường Pham Văn Chiêu 200m, cách đường Quang Trung 1,5km và cách quận Tân Bình chỉ 4km.
Khu căn hộ mini K-Home cũng tương đối gần Quốc Lộ 1A, nơi giúp cư dân có thể di chuyển sang Quận 12 nhanh chóng, đồng thời cũng có thể đi về khu Đông như Thủ Đức, Bình Dương và khu Tây Bắc như Hóc Môn, Củ Chi, Tây Ninh một cách nhanh chóng.

Mặt bằng K-HOME
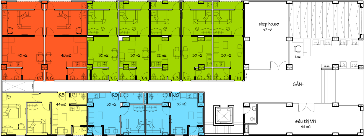
MẶT BẰNG TẦNG TRỆT K HOME
Tầng trệt chung cư K-Home Gò Vấp chỉ có 10 căn hộ có diện tích 30m², 40m² và 1 căn hộ diện tích 44m². Phần diện tích còn lại của tầng trệt K Home là các tiện ích phục vụ cư dân như shophouse, siêu thị mini, thang máy, sảnh đón – tiếp khách, nhà vệ sinh chung…

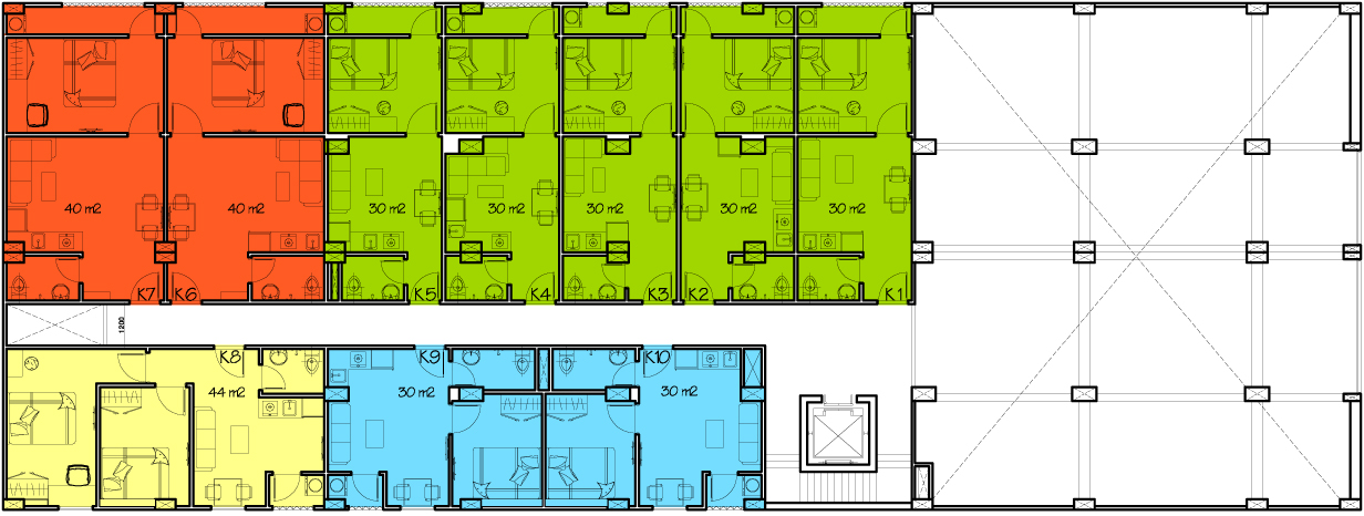
MẶT BẰNG TẦNG LỬNG K HOME
Tầng lửng căn hộ chung cư K Home hoàn toàn giống với tầng trệt nhưng không có phần diện tích tiện ích chung. Với 16 căn hộ mỗi tầng, khách hàng có thể sử dụng cả thang bộ và thang máy.

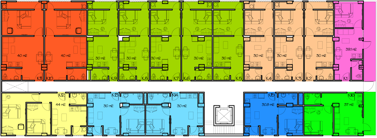
MẶT BẰNG TẦNG 2 – 3- 4 K HOME
Tầng 2 -3 – 4, ngoài các căn hộ ở tầng trệt và lửng có thêm 3 căn 30m², 1 căn 39,1m², 1 căn 37m² và 1 căn 30.8m² trong đó 2 căn K1 và K16 có view ra mặt tiền của dự án căn hộ K-Home Gò Vấp.

MẶT BẰNG TẦNG THƯỢNG CHUNG CƯ K-HOME
Tầng thượng chung cư K Home Gò Vấp chỉ có duy nhất 1 căn đặc biệt yên tĩnh, view đẹp, thoáng mát có diện tích 37.8m².

MẶT BẰNG CĂN HỘ K HOME CHI TIẾT
Mặc dù hầu hết các căn hộ K Home Gò Vấp có diện tích nhỏ nhưng nhờ vào thiết kế cẩn nhận, cân nhắc từng chi tiết nhỏ nhất nên vẫn toát lên nét tinh thế của từng căn hộ. Hầu hết các căn hộ K Home vẫn có ban công thông thoáng giúp đón nhận ánh nắng và gió trời vào căn hộ bên trong.

Thanh toán K-HOME
Khách hàng mua căn hộ K Home Gò Vấp sẽ thanh toán theo tiến độ xây dựng cho đến khi bàn giao nhà (dự kiến cuối năm 2022). Trong hầu hết các đợt thanh toán, khách hàng chỉ thanh toán 5% tổng giá trị căn hộ trong thời gian 30 ngày.

Giá bán K-HOME
GIÁ BÁN CĂN HỘ K HOME
Giá bán căn hộ K-Home chỉ từ 1 – 1,2 tỷ đồng/căn.
CHÍNH SÁCH BÁN HÀNG K HOME
|
CHƯƠNG TRÌNH QUÀ TẶNG |
NỘI DUNG |
|
|
Chiết khấu khi khách hàng thanh toán vượt tiến độ trong đợt 1 |
KH thanh toán đợt 1 |
Mức chiết khấu |
|
50% giá trị căn hộ |
2% |
|
|
70% giá trị căn hộ |
5% |
|
|
95% giá trị căn hộ |
7% |
|
TẠI SAO NÊN ĐẦU TƯ CĂN HỘ K HOME?
Chung tôi đúc kết và tóp tắt cho bạn 4 lý do cực kỳ thuyết phục để bạn quyết định đầu tư căn hộ K Home Gò Vấp:
1. Vị trí trung tâm quận Gò Vấp, gần mặt tiền đường Phạm Văn Chiêu, cách đường Quang Trung chỉ 1,5km
2. Dự án có pháp lý đầy đủ, có giấy phép xây dựng, hãy yêu cầu nhân viên kinh doanh cho bạn xem giấy phép trước khi mua.
3. Dòng căn hộ mini lại còn có pháp lý đầy đủ là sản phẩm cực kỳ hiếm có trên thị trường, yếu tố “khan hiếm” là yếu tố quan trọng để chúng ta mạnh dạn đầu tư.
4. Bạn chỉ cần bỏ ra số tiền rất ít để mua căn hộ K-Home, chỉ khoảng 20% – 30% của 1 tỷ đồng nhưng bạn có thể thu về cả trăm triệu chỉ sau vài tháng sau đó.
Tóm lại, K Home có đầy đủ những yếu tố hấp dẫn nhất để chúng ta đầu tư, đó là vị trí, pháp lý, tính khan hiếm và tỷ lệ lợi nhuận (ROI). Không dám đâu tư vào dự án căn hộ K-Home Gò Vấp thì tốt nhất không nên đầu tư nơi khác.
Nhà mẫu K-HOME




Dự án sắp công bố
| DỰ ÁN ĐANG TRIỂN KHAI: Danang Gold Tower | Lam Sơn Nexus | Dự an Poulo Condor | Coastal Quảng Ngãi | Symlife | Peninsula Đà Nẵng | Destino Centro | Stella Icon | FIFA City | Square City | Hiyori Aqua Tower |


