Tổng quan SEN VÀNG TOWN
Sen Vàng Town là một nhà phố thương mại tọa lạc ngay mặt tiền đường Quách Điêu do Sen Vàng Holdings làm đơn vị phát triển dự án. Khu phố thương mại Sen Vàng Town Quách Điêu được xây dựng trên khu đất có diện tích gần 5.000 m² với 37 căn nhà phố có sổ đỏ cho từng nền với thời gian sở hữu lâu dài.
Nhà phố Sen Vàng Town có thiết kế 1 trệt, 1 lửng, 2 lầu, 1 áp mái với mặt ngoài được hoàn thiện đồng bộ, bên trong giao thô và có làm sẵn cầu thang.
Khu phố thương mại Sen Vàng đang thi công cơ sở hạ tầng giai đoạn sau cùng với hệ thống nước, điện được âm hóa hoàn toàn, cùng với đó là hệ thống chiếu sáng, vỉa hè, hệ thống cây xanh công cộng đang hoàn chỉnh từng ngày.
Sen Vàng Town Quách Điêu là khu dân cư biệt lập – khép kín được thiết kế, xây dựng cơ sở hạ tầng hoàn chỉnh với hệ thống đường nội bộ tráng nhựa 8m, vỉa hè mỗi bên 1 m có lát gạch hoặc đá.
Theo dự kiến, Sen Vàng Town Bình Chánh sẽ bắt đầu được giữ chỗ kể từ ngày 5/11/2021 và thời gian công bố giá dự kiến vào ngày 5/12/2021.
>>> Tham khảo: nhà phố The Sholi.
|
Tên dự án |
Sen Vàng Town |
|
Đơn vị phát triển |
Sen Vàng Holdings |
|
Đơn vị xây dựng |
Viteccons |
|
Giám sát |
SAMOOCM |
|
Tư vấn thiết kế |
Point Architecture |
|
Địa chỉ dự án |
Mặt tiền đường Quách Điêu, thị xã Vĩnh Lộc A, Bình Chánh |
|
Diện tích khuôn viên |
4.495 m² |
|
Loại hình |
Nhà phố xây sẵn |
|
Số lượng sản phẩm |
37 căn |
|
Thiết kế |
01 trệt, 01 lửng, 02 lầu, 01 áp mái |
|
Pháp lý |
Sổ đất riêng và GPXD riêng từng căn |
|
Hình thức bàn giao |
Bàn giao nhà hoàn thiện bên ngoài, thô bên trong có làm cầu thang |
|
Thời gian sở hữu |
Lâu dài |
|
Thời gian bàn giao |
Tháng 12/2021 |

Vị trí SEN VÀNG TOWN
Dự án Sen Vàng Town tọa lạc ngay mặt tiền đường Quách Điêu thuộc xã Vĩnh Lộc A, huyện Bình Chánh. Khu phố thương mại Sen Vàng nằm đối diện Cửa Hàng Điện Máy Xanh, gần chợ Nữ Dân Công, cách giao lộ Vĩnh Lộc – Nguyễn Thị Tú chỉ hơn 1 km. Đây là vị trí tiếp giáp với địa bàn Vĩnh Lộc B, nơi rất thuận tiện để di chuyển về quận Tân Phú qua tuyến đường Nguyễn Thị Tú.
Đường Quách Điêu của Khu dân cư Bình Chánh là tuyến đường có khu dân cư sầm uất, kinh doanh phát triển, đường có lộ giới 40m, có 2 đầu thông đi ra đường Thới Hòa và đường Nguyễn Văn Sáng. Khu phố thương mại Sen Vàng chỉ cách đường Thới Hòa 50 m, thuận tiện kết nối với với Khu Công nghiệp Vĩnh Lộc với với quy mô hơn 203 ha.

Thiết kế SEN VÀNG TOWN
Dự án Sen Vàng Town Quách Điêu Bình Chánh được thiết kế theo phong cách hiện đại với với mục tiêu hướng đến đối tượng khách là những thương nhân thành đạt, ngoài cầu để ở, họ có thể thể dành để cho thuê mặt mặt bằng kinh doanh, buôn bán.
Do đó, thiết kế của Sen Vàng Town có những nét đặc trưng như bên ngoài nhà được thiết kế và xây dựng đồng bộ có sử dụng khung kính cùng với các đường đường line tinh tế, kết kết hợp với với khung sắt mỹ thuật. Thiết kế này giúp mở rộng tầm nhìn tạo sự nổi bật cho dãy nhà đồng thời cũng tạo điểm nhấn “Phố thương mại” trong lòng khu dân dân cư.

Mặt bằng SEN VÀNG TOWN
MẶT BẰNG TỔNG THỂ
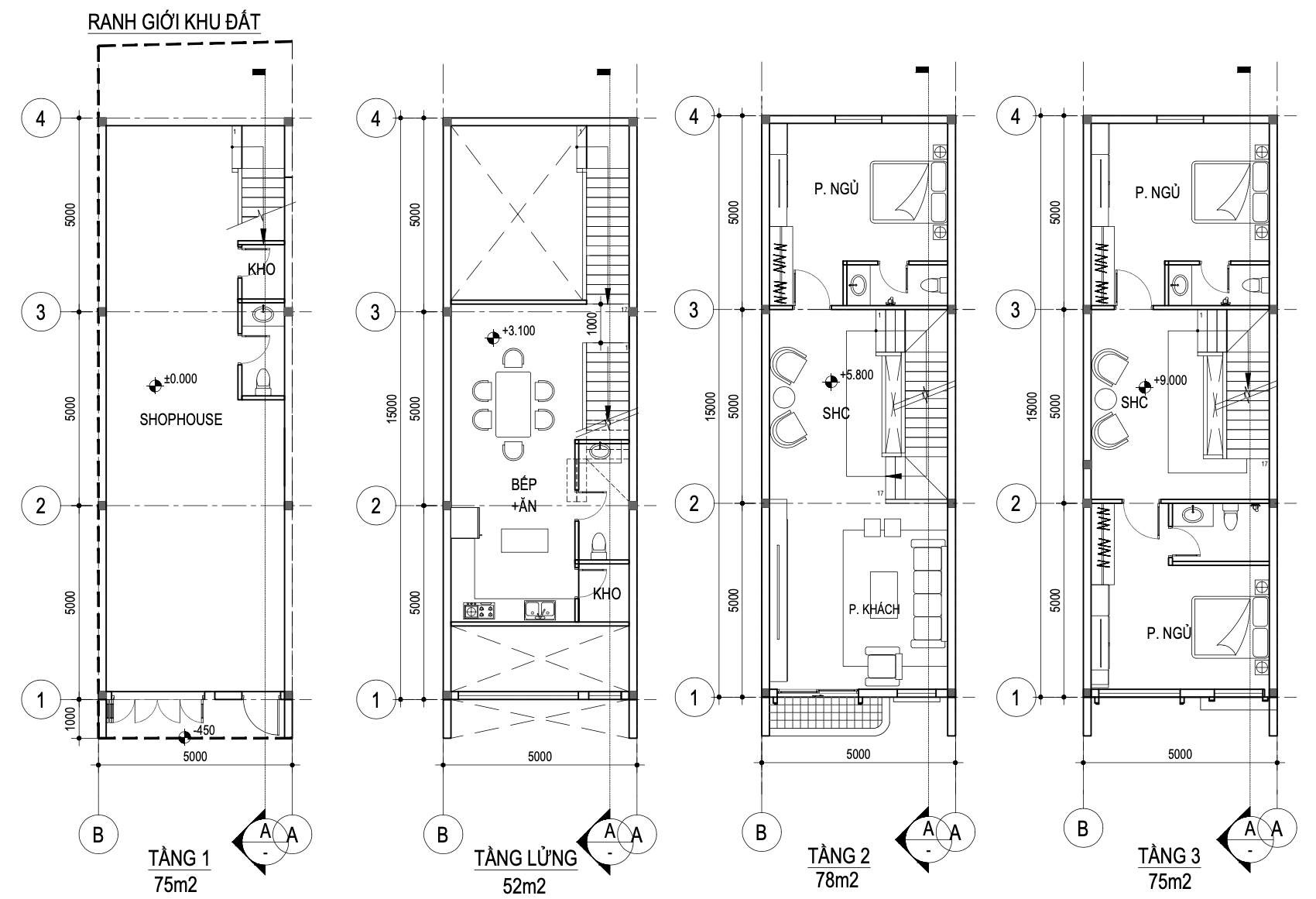
Sen Vàng Town Quách Điêu bao gồm 37 căn nhà phố thương mại liền kề có diện tích từ 84,79 m² đến 126,61 m². Các căn nhà phố này đều hướng về trục phố thương mại có lộ giới 8m. Ngoại trừ một số căn góc ngay mặt tiền đường Quách Điêu, các căn còn lại đều có chiều rộng 5m và chiều ngang tối thiểu là 16m.

MẶT BẰNG TẦNG ĐIỂN HÌNH
37 căn nhà phố Sen Vàng Town có quy chuẩn xây dựng đồng nhất là 1 trệt, 1 lửng, 2 lầu và 1 áp mái khi bàn giao cho khách hàng sẽ hoàn thiện mặt ngoài, bên trong giao thô có cầu thang.

Giá bán SEN VÀNG TOWN
GIÁ BÁN
Giá bán nhà phố Sen Vàng Town đợt 1 chỉ từ 5,6 tỷ đồng/căn.
CHÍNH SÁCH BÁN HÀNG
Nội dung đang được cập nhật.
LỢI ÍCH CỦA VIỆC ĐẦU TƯ VÀO NHÀ TIỀN XÂY DỰNG
Bất động sản, đặc biệt là bất động sản nhà ở, là một bổ sung tuyệt vời cho danh mục đầu tư của bạn. Đó là một khoản đầu tư mang lại lợi tức thu nhập tuyệt vời cũng như mang lại doanh thu liên tục năm này qua năm khác. Tất nhiên, có một số cách để đầu tư bất động sản, tuy nhiên, nhà tiền xây dựng giao thô như Sen Vàng Town là một trong những cơ hội phát triển nhanh nhất hiện nay!
Định giá ban đầu
Một trong những điểm thu hút lớn nhất đối với những ngôi nhà trước khi xây dựng là giá ban đầu thấp dựa trên giá trị của bất động sản sau khi hoàn thành. Điều này cho phép bạn đặt mình vào vị trí có thể kiếm được lợi tức đáng kể từ khoản đầu tư của mình!
Lợi nhuận
Một khi bạn quyết định bán, bạn sẽ thấy rằng thị trường thường sẽ cho thấy một số đánh giá cao, có nghĩa là khoản đầu tư của bạn đã được đền đáp nhiều hơn. Do mức giá bạn trả thấp hơn và nhu cầu về nhà ở ngày càng tăng, lợi tức của bạn có thể cao hơn nhiều so với việc bạn đã mua và đầu tư vào những ngôi nhà sau xây dựng.
Bảo trì và sửa chữa thấp
Không giống như nhà bán lại, bất động sản xây dựng mới đi kèm với bảo hành của chủ đầu tư theo quy định của pháp luật. Các chính sách bảo hành này thường có thời gian hai năm hoặc lâu hơn. Khi đầu tư vào loại hình bất động sản này, bạn không phải lo lắng về phí bảo trì và sữa chữa tài sản của mình.
Tùy biến
Mua mà nhà xây sẵn giao thô như nhà phố Sen Vàng Town có nghĩa là bạn nhận được lợi ích bổ sung là có thể tùy chỉnh bất động sản cho phù hợp với nhu cầu của mình. Việc lựa chọn các tính năng như sàn, tủ, ánh sáng, hệ thống ống nước và đồ đạc có thể cực kỳ hữu ích cho các nhà đầu tư hy vọng giảm chi phí của họ trong khi vẫn làm cho ngôi nhà bền và hấp dẫn người mua (hoặc thuê) trong tương lai nhất có thể.
Thị trường mới nổi
Việc xây dựng mới sẽ luôn được tìm thấy ở các thị trường mới nổi có tiềm năng phát triển mạnh mẽ. Là một nhà đầu tư bất động sản, đây là nơi bạn muốn đầu tư để giảm thiểu rủi ro và tối đa hóa giá trị tài sản trong dài hạn. Mua bất động sản mới ở những khu vực sầm uất, giao thương phát triển và giao thông thuận tiện như khu phố thương mại Sen Vàng Town Quách Điêu sẽ làm tăng triển vọng cho thuê hay bản lại của ngôi nhà của bạn.
Tóm lại, nhà xây sẵn giao thô rất phù hợp làm tài sản đầu tư hoặc cho thuê. Chúng tiết kiệm năng lượng hơn nhiều, yêu cầu bảo trì thấp hơn và có thể được mua ở các thị trường đang phát triển bằng cách sử dụng một khoản đầu tư trả trước nhỏ. Nếu bạn muốn tìm hiểu thêm về những lợi ích của việc đầu tư vào những ngôi nhà trước khi xây dựng, hãy bấm nút gọi điện để liên hệ với chúng tôi.
Ngân hàng SEN VÀNG TOWN

Video SEN VÀNG TOWN
Dự án sắp công bố
| DỰ ÁN ĐANG TRIỂN KHAI: Danang Gold Tower | Lam Sơn Nexus | Dự an Poulo Condor | Coastal Quảng Ngãi | Symlife | Peninsula Đà Nẵng | Destino Centro | Stella Icon | FIFA City | Square City | Hiyori Aqua Tower |


